summer house in filiarta, messinia - greece
Architects Team:
- Stavros Gyftopoulos
- Katerina Fillipa
- Dimitris Sagonas
παραθεριστικη κατοικια στα φιλιατρα μεσσηνιας
Ομάδα Αρχιτεκτόνων:
- Σταύρος Γυφτόπουλος
- Κατερίνα Φιλλίπα
- Δημήτρης Σαγώνας
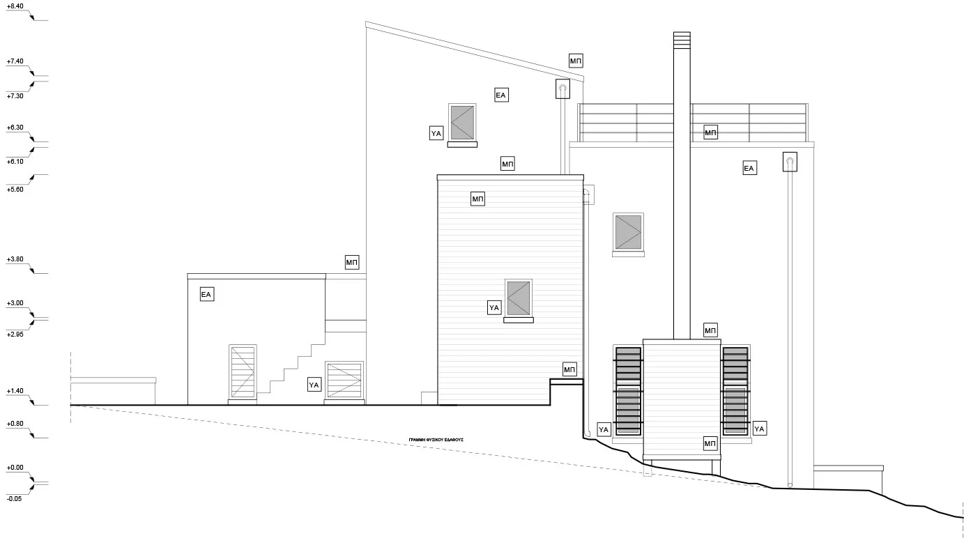
Η οργάνωση του σπιτιού έγινε σε σχήμα Γ και περιορίστηκε
ο όγκος του σε σχέση με την Λύση Α, Η κατοικία
οργανώθηκε σε 2 στάθμες με τους χώρους διημέρευσης
στο ισόγειο να εκτονώνονται σε σημαντικό ημιυπαίθριο
χώρο που αποτελεί προέκταση της λειτουργίας του σπιτιού.
Η βεράντα που δημιουργείται στο δώμα του ημιυπαίθριου
έχει εξαιρετική θεα στη θάλασσα και ο νότιος
προσανατολισμός της την κάνει ιδιαίτερα ευχάριστη
κατά τους χειμερινούς μήνες που το σπίτι κυρίως θα
χρησιμοποιείται.
Ένα πατάρι στο κεντρικό υπνοδωμάτιο διαχωρίζει το χώρο
ύπνου από αυτόν της εργασίας και δίνει δυνατότητα
για ακόμα καλύτερη θεα προς την θάλασσα. Τα υλικά
παραμένουν ο έγχρωμος σοβάς αρτιφισιέλ και το εμφανές
σκυρόδεμα.
